Je vais concevoir vos plans d'électricité suivant la norme NF C15-100

5,0 (40)

Ventes 56

Proposé par SEF_ENGINEERING SEF-DESIGN & ENGINEERING Ventes au total 112 Disponible sur ComeUp Direct

>
L'expert qui donne vie à vos projets
**VOTRE PLAN D'ELECTRICITE REALISE PAR UN EXPERT DU DOMAINE**
>

**LE SAVIEZ-VOUS ?** ???
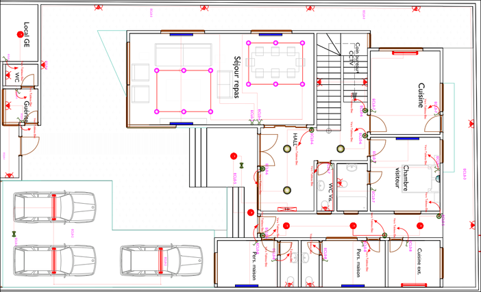
Chaque type de local a une quantité de luminosité stricte à respecter pour satisfaire aux prescriptions de la norme NF C 15-100?. Un surplus ou une quantité insuffisante de la luminosité électrique dans une pièce peut avoir d'énormes répercussions sur la vision d'un être humain et par conséquent sur sa réactivité et sa productivité.???
Pour éviter d'en arriver là, nous vous proposons de faire l'étude complète de l'éclairement de vos bâtiments avec le logiciel **DIALux** et d'en faire sortir un plan d'installation électrique bien détaillé et respectant les normes électriques???.

**QUI SOMMES-NOUS ?** ???
Nous sommes ingénieurs de conception en Génie Électrique et en Informatique Industrielle, avec une excellente expérience professionnelle au cours des 10 dernières années en tant que Responsable de Bureau d'Étude dans la conception et la réalisation des projets de fourniture et développement énergétique et électrique.

**QU'EST-CE QUE NOUS VOUS PROPOSONS ?** ???
Nous vous proposons de faire l'étude complète de l'éclairement de vos bâtiments avec le logiciel DIALux puis la conception d'un plan détaillé mettant en exergue l’exécution des installations à prévoir s’agissant du plan d’éclairage, du plan de prises courant fort / courant faible, du plan de chauffage ainsi que le plan de climatisation de chaque pièce ou bureau de votre bâtiment.

**DE QUOI AVONS-NOUS BESOIN ?** ?
Pour la conception de vos plans électriques ou toute autres installations dans le domaine de l'électricité, nous avons besoin que vous nous fournissez soit une image ou une esquisse, soit un document PDF du bâtiments ainsi que quelques informations liées à votre besoin réel.

**CE QUE VOUS AUREZ EN RETOUR :** ???
Lorsque nous terminons le projet, nous vous le transmettons au format PDF ou fichier DWG pour les plans Autocad ou au format de fichier EVO pour la version de DIALux.


**~AUTRES SERVICES SPECIFIQUES QUE NOUS VOUS PROPOSONS :~**
Compte tenu de notre expérience irréfutable en bureau d'étude pluridisciplinaire, nous sommes en mesure de vous réaliser les services spécifiques, tels que :

- La conception des plans 2D et 3D des bâtiments, cette conception sera réalisée avec les logiciels Archicad et Autocad.

- La réalisation des bilans de puissance des installations électriques de votre bâtiment avec Caneco BT ou Xl Pro Calcul,

- La conception des schémas unifilaires de vos tableaux électriques avec XLPRO, Ecodial ou Rapsodie.

- La conception de vos plans de vidéo surveillance, de contrôle d'accès et de Système de Sécurité Incendie (SSI).

- Le dimensionnement des Systèmes de Protection contre la Foudre (SPF) pour la protection de votre bâtiment contre les effets directs des coups de foudre suivant la Norme NF C 17-102.

- La conception de vos plans de ventilation, de chauffage et de climatisation détente directe, climatiseur gainable, système VRV, eau glacée, etc.



**~Aussi, pour les différents types de projets, respectant les prescriptions de la norme NF C 15-100, nous sommes en mesures de vous fournir les documents constituant l’avant-projet en fonction de vos choix et selon le cahier des charges prédéfini et établi avec vous.~**


1. La conception des plans 2D et 3D des bâtiments, cette conception sera réalisée avec les logiciels Archicad et Autocad.
2. Les notes d'éclairement de chaque pièce seront réalisées avec le logiciel DiaLux.
3. Les plans d'Éclairage, de Prise Courant Fort / Courant Faible et les plans de chauffage seront conçus avec le logiciel Caneco Implantation.
4. Les schémas unifilaires seront réalisés, soit avec le logiciel XLPro Calcul, soit avec Caneco BT.
5. Le dimensionnement des Tableaux Électriques sera effectué avec le Logiciel XLPro ou Caneco BT.
6. L'Analyse des risques de foudre et le dimensionnement d'un système de protection contre la foudre (SPF), suivant la norme NF C 17-102 pour votre bâtiment, sera faite avec le Logiciel Protec2000 de Indelec.


**Pour 23,49 $US, nous allons faire l'étude de l'éclairement de votre appartement dans DIALux et concevoir le plan d'éclairage de votre appartement ayant une surface inférieure ou égal à 50 m².**

Nous nous tenons à votre disposition pour toutes collaborations ou sous-traitances.


> N’hésitez pas à prendre contact avec nous pour tous vos projets, nous y répondrons dans les plus brefs délais.

SALUTATIONS CORDIALES !!!

Je vais concevoir vos plans d'électricité suivant la norme NF C15-100

Ce vendeur n’est pas assujetti à la TVA.

Personnaliser le service

  1. Commandez le
    service de votre choix
    à l’un de nos vendeurs
  2. Échangez par chat sur le
    site jusqu’à la livraison en toute sécurité
  3. Le vendeur n’est payé que
    lorsque vous validez la livraison

Avis des clients

5,0 (40)

MohamedKhaladi

Toujours satisfait du travail réalisé. Ne lâche pas le projet et est toujours à l'écoute.

SEF_ENGINEERING

Merci M. Mohamed !!! Ce fut un véritable plaisir pour moi de travailler sur votre projet. Je reste à l'écoute pour d'autres opportunités futures !!! Beaucoup de succès dans votre entreprise !!!

Nivekrix96

Je suis satisfait du travail fournit. Merci a vous. Je vous reviendrai bientôt

SEF_ENGINEERING

Merci Monsieur.!! Ce fut un véritable plaisir pour moi de travailler sur votre projet. Je reste à l'écoute pour d'autres opportunités futures !!! Beaucoup de succès dans votre entreprise !!!

AnzizSOIDRI

merci pour le travail

SEF_ENGINEERING

Merci M. AnzizSOIDRI !!! Ce fut un véritable plaisir pour moi de travailler sur votre projet. Je reste à l'écoute pour d'autres opportunités futures !!! Beaucoup de succès dans votre entreprise !!!

À propos du vendeur

SEF_ENGINEERING

Performance
Commande en cours 0 Ventes au total 112 Vendeur depuis nov. 2020
Commande en cours 0 Ventes au total 112 Vendeur depuis nov. 2020

Hello ! 🏆🏆 Bienvenue à SEF-DESIGN & ENGINEERING ! Je suis Harold NOUNAGNON, Ing. Génie Électrique/CEO de "SEF". SEF (STRUCTURE - ELECTRICITY - FLUIDS) est un bureau d’Études Techniques pluri-disciplinaires qui aide depuis plus de 10 années les particuliers, les bureaux d'études techniques et les responsables d'entreprises dans les domaines du Génie Civil - Génie Électrique (CFO/CFA) - FLUIDES (CVCD & PLOMBERIE). Nous sommes spécialisés dans l’Étude, la Conception et la réalisation des projets de fourniture et de développement dans les domaines BTP, Électrique, énergétique et fluides. Les prestations que SEF, fournie sur cette plateforme, sont réparties comme suit : ** STRUCTURE : PLAN 2D - PLAN 3D - CALCUL & PLAN DE STRUCTURE - MODÉLISATION 3D - RÉALISATION ET CHIFFRAGE DQE - ARCHICAD - LUMION - SKETCHUP - TWINMOTION. ** ELECTRICITE : ETUDES EN PHASES APS / APD / PRO / EXE (CFO/CFA)- NOTE DE CALCUL ECLAIREMENT - NC BT/HT - PLANS D’INSTALLATIONS ELECTRIQUES - DOMOTIQUE KNX - DIALUX–AUTOCAD–XLPRO TAB.–XL PRO CALCUL–CANECO BT/HT–REVIT–PVSYST. ** FLUIDES : ÉTUDES EN PHASES APS / APD / PRO / EXE (CVCD & PLOMBERIE) - NOTE DE CALCUL - PLANS D’EXÉCUTIONS. POUR QUOI NOUS ??? Parce que : nous avons plus de 12 années d'expériences ; nous sommes disponibles à plein temps 24H/24 pour vous servir ; nous réalisons un travail 100 % satisfaisant ; nous vous proposons des révisions illimitées sans aucuns frais supplémentaires ; nous assurons une grande précision dans les études et conceptions des plans ; nous livrons rapidement en 24 heures si vous le souhaitez ; N’hésitez pas à nous contacter afin d'obtenir de meilleures conceptions. Merci et à bientôt pour une belle collaboration 🏆🏆!!!

En savoir plus