Je vais réaliser vos plans 2D détaillés et côtés

5,0 (3)

Ventes 5

Proposé par SEF_ENGINEERING SEF-DESIGN & ENGINEERING Ventes au total 112 Disponible sur ComeUp Direct

>
**LES PLANS 2D ET 3D DE VOS BÂTIMENTS RÉALISES PAR DES PROFESSIONNELS DU MÉTIER**
>

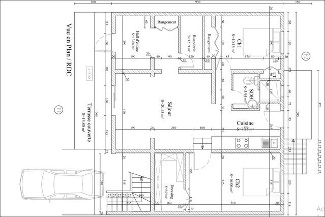
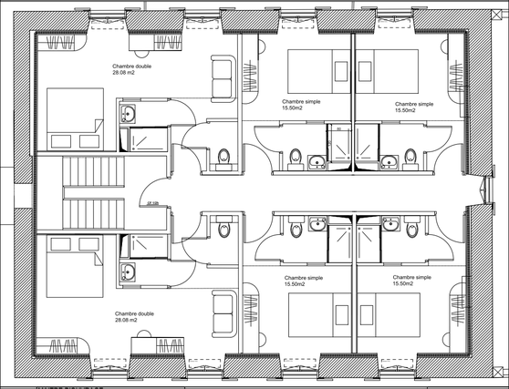
**Le plan en deux dimensions permet de rapidement visualiser les volumes, de comprendre l’emplacement des pièces les unes par rapport aux autres et de constater l’aménagement de l’espace?.**
On peut donc plus facilement s’imaginer; ce qui est plus complexe à faire à partir de photos.
En effet, celles-ci sont évidemment essentielles car elles reflètent la réalité de l’état, mais les plans sont très utiles pour aérer le bien de toute décoration et ameublement afin de ne laisser que l’essentiel??.
● Êtes-vous entrepreneur ???
● Avez-vous un chantier où les travaux sont énormes ??
● Êtes-vous étudiant ou élève en génie civil ? ??
● Êtes-vous débordés de projets, les cours ? ?
● Avez-vous vous votre mémoire de fin de formation ou rapport de stage à rendre ? ??
● Ne disposez-vous pas du temps compte tenu de vos occupations pour réaliser un plan 2D ??
● Vous êtes particuliers et vous désirez construire mais vous avez du mal à mieux projeter votre nouvelle demeure dans le moindre de ses détails ? ?
● Vous n’avez pas les moyens de vous payer les conseils d’un cabinet ??
Si vous répondez **"OUI"** à l'une des questions ci-dessus, alors ce service vous concerne. ?
**Ah ! Oui ! Je mets mon expertise à votre disposition afin de vous accompagner et/ou de vous réaliser vos plans 2D détaillés.**


> Nous partirons d'une idée ou d'un croquis ou d'un plan antérieur. Toutefois, vos consignes, instructions, aspirations sont des ordres que je m'engage de respecter.

**CE QUE JE PROPOSE À 23,48 $US :**
● Un plan 2D (avec cotations nécessaires et aménagement)
● Format : PDF ou JPEG ou PNG
● Surface : 50m² maxi.
Pour une superficie plus étendue ou pour autre services, prenez connaissance de mes options supplémentaires.

OPTIONS SUPPLÉMENTAIRESPRIX
------
Dessin d’un plan d’une surface de 80m² maxi 35,23 $US
Dessin d’un plan d’une surface entre 80m² et 150m²52,84 $US
Dessin d’un plan d’une surface entre 150m² et 250m²76,32 $US
Dessin d’un plan d’une surface entre 250m² et 350m²99,80 $US
Dessin d’un plan d’une surface entre 350m² et 500m²146,77 $US
Plan de Façade29,35 $US
Plan de coupe35,23 $US
Obtention du fichier source23,48 $US
Conception et Dessin d’un plan d’une surface allant jusqu’à 100m²111,55 $US
Conception et Dessin d’un plan d’une surface de 100m² à 200m²140,90 $US

**DÉROULEMENT DE LA COMMANDE :**
● Réception et validation
● Échange sur vos consignes et attentes
● Mise en accord sur les dimensions et le format de votre plan 2D
● Livraison en moins de 48h
● 1 retouche offerte.


**POURQUOI NOUS CHOISIR :**
Nous sommes un bureau d'étude pluridisciplinaire constitué entre autres d'ingénieur projecteur en Génie Civil, spécialité BTP, ayant une grande expérience et ayant participer au succès de plusieurs entreprises et cabinets d'architecture dans les projets de conception et de réalisation de bâtiments. Au-delà de votre satisfaction, chaque service représente pour nous un défi à relever afin de gagner votre confiance et avoir un avis positif pour d'autres commandes futures.

~**En faisant appel à notre expertise, vous gagnez du temps et un travail de qualité.**~

À TRÈS VITE POUR UNE FRANCHE COLLABORATION.


**CORDIALEMENT!!!!**

Je vais réaliser vos plans 2D détaillés et côtés

Ce vendeur n’est pas assujetti à la TVA.

Personnaliser le service

  1. Commandez le
    service de votre choix
    à l’un de nos vendeurs
  2. Échangez par chat sur le
    site jusqu’à la livraison en toute sécurité
  3. Le vendeur n’est payé que
    lorsque vous validez la livraison

Avis des clients

5,0 (3)

AIT_MAO

Très bon Rapport qualité prix , Monsieur Harold est très patient, à l'écoute et efficace. les plans électricité exécutions et unifilaires on été réalisés dans les règles de l'art selon la norme NF-C-15 100 . je recommande cette entreprise.

SEF_ENGINEERING

Merci Monsieur AIT_MAO !!! Ce fut un véritable plaisir pour moi de travailler sur votre projet. - PLAN 2D - PLAN D’EXÉCUTION DES INSTALLATIONS ÉLECTRIQUES - NC & SCHÉMAS UNIFILAIRES DES TDs MERCI POUR LA CONFIANCE !!! Je reste à l'écoute pour d'autres opportunités futures !!! Beaucoup de succès dans votre entreprise !!!

CeciliaTny

Très bon travail, super réactif , il prépare parfaitement les plans demandés.

SEF_ENGINEERING

Merci CeciliaTny !!!! Ce fut un véritable plaisir pour moi de travailler sur votre bâtiment R+2 !!! Je reste à l'écoute pour d'autres opportunités futures !!! Bonne suite !!!!

JB_Services

Travail bien fait. Je suis satisfait. Je reviendrai sûrement pour d'autres collaborations. Je recommande 😊 Merci beaucoup

SEF_ENGINEERING

Merci pour la confiance JB_Services !

À propos du vendeur

SEF_ENGINEERING

Performance
Commande en cours 0 Ventes au total 112 Vendeur depuis nov. 2020
Commande en cours 0 Ventes au total 112 Vendeur depuis nov. 2020

Hello ! 🏆🏆 Bienvenue à SEF-DESIGN & ENGINEERING ! Je suis Harold NOUNAGNON, Ing. Génie Électrique/CEO de "SEF". SEF (STRUCTURE - ELECTRICITY - FLUIDS) est un bureau d’Études Techniques pluri-disciplinaires qui aide depuis plus de 10 années les particuliers, les bureaux d'études techniques et les responsables d'entreprises dans les domaines du Génie Civil - Génie Électrique (CFO/CFA) - FLUIDES (CVCD & PLOMBERIE). Nous sommes spécialisés dans l’Étude, la Conception et la réalisation des projets de fourniture et de développement dans les domaines BTP, Électrique, énergétique et fluides. Les prestations que SEF, fournie sur cette plateforme, sont réparties comme suit : ** STRUCTURE : PLAN 2D - PLAN 3D - CALCUL & PLAN DE STRUCTURE - MODÉLISATION 3D - RÉALISATION ET CHIFFRAGE DQE - ARCHICAD - LUMION - SKETCHUP - TWINMOTION. ** ELECTRICITE : ETUDES EN PHASES APS / APD / PRO / EXE (CFO/CFA)- NOTE DE CALCUL ECLAIREMENT - NC BT/HT - PLANS D’INSTALLATIONS ELECTRIQUES - DOMOTIQUE KNX - DIALUX–AUTOCAD–XLPRO TAB.–XL PRO CALCUL–CANECO BT/HT–REVIT–PVSYST. ** FLUIDES : ÉTUDES EN PHASES APS / APD / PRO / EXE (CVCD & PLOMBERIE) - NOTE DE CALCUL - PLANS D’EXÉCUTIONS. POUR QUOI NOUS ??? Parce que : nous avons plus de 12 années d'expériences ; nous sommes disponibles à plein temps 24H/24 pour vous servir ; nous réalisons un travail 100 % satisfaisant ; nous vous proposons des révisions illimitées sans aucuns frais supplémentaires ; nous assurons une grande précision dans les études et conceptions des plans ; nous livrons rapidement en 24 heures si vous le souhaitez ; N’hésitez pas à nous contacter afin d'obtenir de meilleures conceptions. Merci et à bientôt pour une belle collaboration 🏆🏆!!!

En savoir plus