Je vais vous aider à réaliser votre permis de construire conforme à l'urbanisme sans stress et sans erreur
Nouveau
Vente 0
Proposé par Jean_Thellier •Dessinateur, projeteur, concepteur et rédacteur Vente au total 0
Obtenez votre permis de construire facilement avec un dossier complet et conforme (PCMI1 à PCMI8 + CERFA)
Vous souhaitez déposer un permis de construire mais vous ne savez pas par où commencer ?
Vous avez peur d’un refus à cause d’un dossier incomplet ou mal réalisé ?
Je vous propose un service professionnel pour réaliser votre dossier complet de permis de construire, conforme aux exigences de l’urbanisme.
CE QUE JE VOUS PROPOSE
Je réalise pour vous un dossier PCMI complet en format pdf prêt pour l'impression ou en format PNG/jpg prêt à être déposé sur le portail de l’urbanisme, avec un rendu propre, clair et professionnel.
Gain de temps
Moins de stress
Dossier conforme
Accompagnement personnalisé
OFFRE BASIC – PRIX DE LANCEMENT
Profitez d’un tarif attractif pour un service complet
Pièces incluses :
PCMI1 : Plan de situation
PCMI2 : Plan de masse
PCMI3 : Plan de coupe
PCMI4 : Notice descriptive
PCMI5 : Plans des façades
PCMI6 : Insertion 3D réaliste
PCMI7 : Vue proche
PCMI8 : Vue lointaine
+ Formulaire CERFA complété
BONUS OFFERT
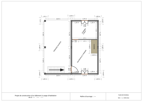
Plans d’intérieur optimisés pour votre projet.
LIVRABLES
Dossier complet en PDF ou jpg/PNG haute qualité
Travail propre et professionnel
IMPORTANT À SAVOIR
Ce service comprend uniquement :
La réalisation des plans pour l’obtention du permis de construire
Non inclus :
Étude thermique
Étude structure
Études techniques complémentaires
POURQUOI ME FAIRE CONFIANCE ?
Expérience en bâtiment et urbanisme
Maîtrise des logiciels de conception 2D et 3D
Travail rapide et soigné
Communication claire et efficace
Mon objectif : vous aider à obtenir votre permis de construire sans erreur
AVANT DE COMMANDER
Merci de me fournir :
Adresse du terrain
Dimensions et implantation du projet
Photos ou croquis
Vos idées ou inspirations
PRÊT À LANCER VOTRE PROJET ?
Commandez maintenant et obtenez un dossier complet rapidement
Je reste disponible pour répondre à toutes vos questions
Vous souhaitez déposer un permis de construire mais vous ne savez pas par où commencer ?
Vous avez peur d’un refus à cause d’un dossier incomplet ou mal réalisé ?
Je vous propose un service professionnel pour réaliser votre dossier complet de permis de construire, conforme aux exigences de l’urbanisme.
CE QUE JE VOUS PROPOSE
Je réalise pour vous un dossier PCMI complet en format pdf prêt pour l'impression ou en format PNG/jpg prêt à être déposé sur le portail de l’urbanisme, avec un rendu propre, clair et professionnel.
Gain de temps
Moins de stress
Dossier conforme
Accompagnement personnalisé
OFFRE BASIC – PRIX DE LANCEMENT
Profitez d’un tarif attractif pour un service complet
Pièces incluses :
PCMI1 : Plan de situation
PCMI2 : Plan de masse
PCMI3 : Plan de coupe
PCMI4 : Notice descriptive
PCMI5 : Plans des façades
PCMI6 : Insertion 3D réaliste
PCMI7 : Vue proche
PCMI8 : Vue lointaine
+ Formulaire CERFA complété
BONUS OFFERT
Plans d’intérieur optimisés pour votre projet.
LIVRABLES
Dossier complet en PDF ou jpg/PNG haute qualité
Travail propre et professionnel
IMPORTANT À SAVOIR
Ce service comprend uniquement :
La réalisation des plans pour l’obtention du permis de construire
Non inclus :
Étude thermique
Étude structure
Études techniques complémentaires
POURQUOI ME FAIRE CONFIANCE ?
Expérience en bâtiment et urbanisme
Maîtrise des logiciels de conception 2D et 3D
Travail rapide et soigné
Communication claire et efficace
Mon objectif : vous aider à obtenir votre permis de construire sans erreur
AVANT DE COMMANDER
Merci de me fournir :
Adresse du terrain
Dimensions et implantation du projet
Photos ou croquis
Vos idées ou inspirations
PRÊT À LANCER VOTRE PROJET ?
Commandez maintenant et obtenez un dossier complet rapidement
Je reste disponible pour répondre à toutes vos questions
-
Commandez le
service de votre choix
à l’un de nos vendeurs -
Échangez par chat sur le
site jusqu’à la livraison en toute sécurité -
Le vendeur n’est payé que
lorsque vous validez la livraison
À propos du vendeur
Commande en cours 0
Vente au total 0
Vendeur depuis mars 2026
Ingénieur en génie civil et urbaniste spécialisé en conception, dessin technique et rédaction de dossiers (DP/PC). J’accompagne vos projets de construction de l’idée à la réalisation, avec des solutions fiables, conformes et optimisées.