Je vais Concevoir de vos plans d'électricité conformes NF C 15-100, précis et professionnels

Vente 0

Proposé par Rodrigue_ArChIGrAf Rodrigue_ArChI_GrAf Vente au total 0

Plans Électriques Normés & Professionnels : Sécurité + Confort Garantis

Vous lancez une construction, rénovation ou aménagement ?
L’électricité n’est pas un détail : un plan mal conçu = risques, retards, surcoûts, refus Consuel ou problèmes d’assurance.
Je vous livre des plans d’électricité 100 % conformes NF C 15-100 (mise à jour 2025), optimisés pour :

Logements individuels / collectifs
Bureaux, commerces, hôtels, petits tertiaires
Intégration RE2020, bornes VE, domotique basique

Avec +10 ans d’expérience en bureau d’études BTP et ingénierie électrique, je transforme vos idées en plans clairs, précis et immédiatement utilisables par vos artisans.
Ce que vous recevez

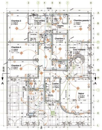
Implantation détaillée (positions prises, interrupteurs, éclairage, courants forts/faibles)
Schéma unifilaire complet (protections, sections, calibres, ID 30 mA, GTL…)
Liste matériels & câbles optimisée (économies sur le chantier)
Formats pro : PDF haute résolution + DWG / RVT / Archicad sur demande
Réalisé sous Revit, AutoCAD ou Archicad

Pourquoi mes clients me choisissent

Conformité totale NF C 15-100 & NF C 17-102 (parafoudre)
Plans lisibles et sans ambiguïté → moins d’erreurs poseurs
Optimisation énergétique et coûts matériaux
Délais rapides + 2 retouches incluses
Travail 100 % à distance

Pour démarrer en 24h : envoyez-moi simplement

Votre plan/esquisse (PDF, image, croquis main levée)
Surfaces + usage pièces
Besoins spécifiques (puissances, VE, domotique…)

Offre Découverte – Petits Projets
À partir de 210,77 $US HT (tarif lancement) :

Projet < 30 m² (studio, petit appartement, extension simple)
Plan complet + schéma unifilaire
Livraison PDF + 2 retouches gratuites
Délai : 3-4 jours ouvrés

Projets moyens/grands : devis gratuit personnalisé (souvent 8-14,05 $US/m² selon complexité).
Prêt à avancer sereinement ?

Je vais Concevoir de vos plans d'électricité conformes NF C 15-100, précis et professionnels

Ce vendeur n’est pas assujetti à la TVA.

Personnaliser le service

  1. Commandez le
    service de votre choix
    à l’un de nos vendeurs
  2. Échangez par chat sur le
    site jusqu’à la livraison en toute sécurité
  3. Le vendeur n’est payé que
    lorsque vous validez la livraison

À propos du vendeur

Rodrigue_ArChIGrAf

Performance
Commande en cours 0 Vente au total 0 Vendeur depuis févr. 2026
Commande en cours 0 Vente au total 0 Vendeur depuis févr. 2026

Rodrigue_ArChI_GrAf Jeune Ingénieur en Génie Civil – Spécialité Travaux Publics &amp; Visualisation 3D Ingénieur civil dynamique et polyvalent, expert en modélisation numérique, analyse structurelle dynamique et visualisation architecturale photoréaliste. Je combine une solide base technique en génie civil (bâtiments, infrastructures routières, ouvrages d’art) avec un sens esthétique affûté en design graphique et rendu 3D, pour livrer des projets précis, innovants et visuellement impactants. Compétences techniques cœur de métier Modélisation 3D &amp; BIM : ArchiCAD, SketchUp, AutoCAD, Covadis Rendu photoréaliste &amp; visualisation immersive : Twinmotion, Lumion Calcul &amp; analyse structurelle : Robot Structural Analysis, AutoCivi Analyse dynamique, sismique et optimisation des ouvrages Management d’équipe, coordination de projets &amp; bureautique avancée (Excel, MS Project, PowerPoint) Compétences en design graphique &amp; communication visuelle (complément essentiel pour la visualisation 3D) Principes fondamentaux du graphisme : composition, théorie des couleurs, typographie, perspective et storytelling visuel Post-production &amp; retouche d’images : Adobe Photoshop (ajustements lumière/couleur, photomontage, planches présentations) Création de supports de présentation : Adobe Illustrator (logos, schémas vectoriels, identité visuelle projet) Motion design &amp; animation légère : bases After Effects ou intégrées dans Twinmotion/Lumion (animations de caméra, transitions fluides pour vidéos de visite) Sens esthétique &amp; veille artistique : tendances architecturales, ambiances lumineuses (jour/soir), matériaux réalistes, cadrage photo-réaliste Orienté résultats et satisfaction client, je maîtrise le passage du plan technique brut à une communication visuelle puissante : rendus HD, visites virtuelles 360°, vidéos guidées, planches explicatives. Respect des normes (Eurocodes, BIM, HQE) et attention permanente aux détails pour éviter les erreurs coûteuses et séduire maîtres d’ouvrage &amp; investisseurs. Disponible pour des missions en : Bureau d’études structure &amp; infrastructures Visualisation 3D / rendu architectural (freelance ou intégré) Suivi de chantier avec supports visuels avancés Projets BIM &amp; modélisation + rendu photoréaliste Contacte-moi pour discuter de ton projet : plan, esquisse, inspiration ou besoin de rendu – je réponds rapidement avec un devis clair ! 🏗️✨ #GénieCivil #Visualisation3D #RenduArchitectural #BIM #Twinmotion #Lumion #Photoshop #DesignGraphique #TravauxPublics

En savoir plus