Je vais réaliser votre plan d'électricité

5,0 (1)

Ventes 3

Proposé par Hippo_lyte Architecte〽️ Ventes au total 59

# Obtenez un plan d'électricité précis et complet pour votre projet.

Vous cherchez à réaliser des plans d'électricité pour votre projet de construction ou de rénovation ? Vous êtes au bon endroit !
En tant que professionnel de l'électricité, je vous propose mon service de réanimation de **plans d'électricité** pour vous accompagner dans la réalisation sécurisée de vos projets. Grâce à mon expertise, je suis en mesure de donner vie à vos idées et de garantir le bon fonctionnement de vos installations électriques.
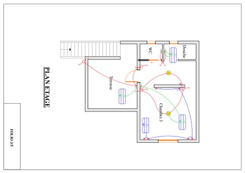
Avec mes compétences approfondies dans le domaine de l'électricité, je suis en mesure de réviser, mettre à jour et améliorer vos **plans électriques** existants.Je veille à ce que vos plans respectent les normes de sécurité en vigueur et qu'ils soient conformes aux réglementations spécifiques à votre région.

# Optez pour un travail de qualité et dans un court délai

En travaillant avec moi, vous bénéficierez d'une analyse minutieuse de vos **plans d'électricité**. Je vérifie l'agencement des circuits, l'emplacement des prises, des interrupteurs et des tableaux électriques. Je m'assure également de l'adéquation des capacités électriques pour éviter toute surcharge ou tout dysfonctionnement.
Ma priorité est de vous fournir des plans d'électricité optimisés qui répondent à vos besoins spécifiques. Je peux également vous conseiller sur les dernières technologies et les solutions éco énergétiques pour améliorer l'efficacité de vos installations.
En faisant appel à mes services, vous avez l'assurance de travailler avec un professionnel compétent et fiable. Je m'engage à respecter les délais et à fournir des résultats de qualité.

# Ce que je vous propose

Pour mon offre de bae de 17,67 $US vous aurez :
✓ le plan d'électricité d'une surface inférieure à 25m²
✓ la livraison du plan se fera sous format PDF, JPEG ou PNG
✓ une retouche sera possible

si votre projet est supérieur à 30m² veuillez parcourir mes offres supplémentaires pour trouver l'offre correspondant à votre besoin...
# Offres supplémentaires
___
*Pack 1: 23,56 $US*
:-
- plan d'électricité de logement de surface comprise entre 25m² et 50m²
- livraison sous format PDF, JPEG ou PNG
- deux retouches possibles

___
*Pack 2: 41,23 $US*
:-
- plan d'électricité de logement de surface comprise entre 50m² et 80m²
- livraison sous format PDF, JPEG ou PNG
- deux retouches possible

___
*Pack 3: 53,01 $US*
:-
- plan d'électricité de logement de surface comprise entre 80m² et 120m²
- livraison sous format PDF, JPEG ou PNG
- deux retouches possibles

___
*Pack 4: 64,79 $US*
:-
- plan d'électricité de logement de surface comprise entre 120m² et 180m²
- livraison sous format PDF, JPEG ou PNG
- deux retouches possibles

___
*Pack 5: 76,57 $US*
:-
- plan d'électricité de logement de surface comprise entre 180m² et 250m²
- livraison sous format PDF, JPEG ou PNG
- deux retouches possible

N'hésitez pas à me contacter dès maintenant pour discuter de vos projets de plans d'électricité. Je serai ravi de mettre mon expertise à votre service et de vous proposer une solution adaptée à vos besoins. Avec mon aide, réalisez vos projets en toute sécurité et optimisez vos installations électriques.

Je vais réaliser votre plan d'électricité

Ce vendeur n’est pas assujetti à la TVA.

Personnaliser le service

  1. Commandez le
    service de votre choix
    à l’un de nos vendeurs
  2. Échangez par chat sur le
    site jusqu’à la livraison en toute sécurité
  3. Le vendeur n’est payé que
    lorsque vous validez la livraison

Avis des clients

5,0 (1)

Compte désactivé

Travail tres professionnel et de qualité , je recommande fortement

Hippo_lyte

Merci à vous. J'ai été ravie de travailler avec vous sur ce projet

À propos du vendeur

Hippo_lyte

Performance
Commande en cours 0 Ventes au total 59 Vendeur depuis mars 2023
Commande en cours 0 Ventes au total 59 Vendeur depuis mars 2023

Hippolyte – Architecte | Modélisation 3D & BIM Architecte passionné spécialisé en modélisation 3D et en gestion de maquettes numériques BIM. J’accompagne les projets architecturaux de la conception aux rendus visuels, en combinant créativité et rigueur technique. Compétences clés : • Conception architecturale (esquisses, plans 2D, modélisation 3D intérieur/extérieur) • Gestion et optimisation de maquettes BIM • Rendus 3D photoréalistes • Animations et supports visuels pour la présentation de projets • Assistance pour les dossiers administratifs (permis de construire) J’aide mes clients à transformer leurs idées en projets clairs, précis et visuellement impactants.

En savoir plus