Je vais concevoir votre plan d'électricité conformément à la norme NF C15-100

5,0 (1)

Vente 1

Proposé par IrLucienDADA Je vais concevoir le plan de l'électricité de votre bâtiment avec AutoCAD et XLPRO. Vente au total 1

Besoin d’un spécialiste pour concevoir le plan électrique de votre bâtiment ?
Vous recherchez un ingénieur qualifié pour réaliser les circuits d’éclairage, de prises de courant et de chauffage de votre logement, qu’il s’agisse d’une construction neuve ou d’une rénovation ?
Ingénieur en conception génie énergétique, spécialisé en électricité du bâtiment et en efficacité énergétique, je vous accompagne dans la réalisation d’un plan électrique conforme à la norme NF C15-100, alliant sécurité, esthétique et performance.
Mes services incluent :
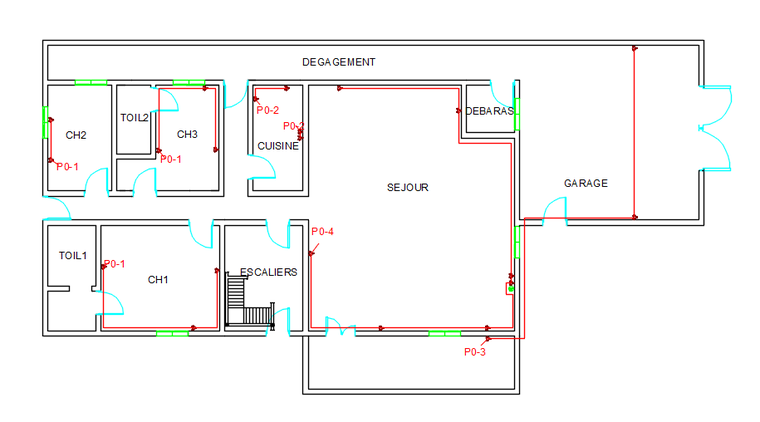
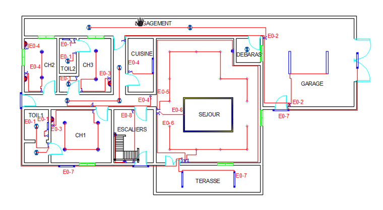
Conception des circuits électriques (éclairage, prises, chauffage) en conformité avec les normes en vigueur.
Schémas unifilaires professionnels, réalisés avec XLPRO Calcul et XLPRO Tableau, incluant :
• Dimensionnement précis des câbles.
• Visualisation détaillée du tableau électrique.
• Ajout d’un parafoudre selon votre zone.
• Bilan des puissances pour une installation optimisée.
Modélisation et simulation d’éclairage sous DIALux, garantissant un confort visuel optimal.
Livraison complète au format PDF avec circuits électriques et schémas détaillés.
Utilisation de CANECO BT pour les projets de grande envergure nécessitant un calcul plus poussé.
Ce dont j’ai besoin pour démarrer votre projet :
Le plan architectural de votre construction en format PDF ou DWG.
Vos exigences spécifiques et besoins particuliers.
Offre spéciale
Pour 17,61 $US, bénéficiez d’une conception électrique complète pour une surface inférieure à 15 m², incluant :
Le plan électrique détaillé.
Les circuits livrés au format PDF.
Le schéma unifilaire de l’installation.
En bonus : une visualisation 3D de l’éclairage de deux pièces sous DIALux !
Mes tarifs :
-Pour une surface comprise entre 15 et 25 mètre carré : 23,49 $US
-Pour une surface comprise entre 25 et 50 mètre carré : 29,36 $US
-Pour une surface comprise entre 50 et 75 mètre carré : 41,10 $US
-Pour une surface comprise entre 75 et 100 mètre carré : 52,84 $US
-Pour une surface comprise entre 100 et 125 mètre carré : 70,46 $US
-Pour une surface comprise entre 125 et 150 mètre carré : 93,94 $US
-Pour une surface comprise entre 150 et 200 mètre carré : 117,43 $US
-Pour une surface comprise entre 200 et 300 mètre carré : 140,92 $US
-Pour une surface comprise entre 300 et 400 mètre carré : 176,15 $US
-Pour une surface comprise entre 400 et 500 mètre carré : 211,37 $US

Contactez-moi dès maintenant pour discuter de votre projet.

Je vais concevoir votre plan d'électricité conformément à la norme NF C15-100

Ce vendeur n’est pas assujetti à la TVA.

Personnaliser le service

  1. Commandez le
    service de votre choix
    à l’un de nos vendeurs
  2. Échangez par chat sur le
    site jusqu’à la livraison en toute sécurité
  3. Le vendeur n’est payé que
    lorsque vous validez la livraison

Avis des clients

5,0 (1)

Edouard14000

Rapide efficace

IrLucienDADA

Merci, un immense plaisir de collaborer avec vous.

À propos du vendeur

IrLucienDADA

Performance
Commande en cours 0 Vente au total 1 Vendeur depuis déc. 2024
Commande en cours 0 Vente au total 1 Vendeur depuis déc. 2024

🔌 Ingénieur électricité bâtiment – ​​Plans & Schémas conformes NF C 15-100 🔌 Besoin d'un plan électrique fiable et conforme ? Vous êtes architecte, entrepreneur ou particulier et voulez un plan d'électricité de votre bâtiment ? ✅ Conception professionnelle avec AutoCAD & XLPRO ✅Optimisation de l'éclairage avec DIALux ✅Plans et schémas unifilaires conformes à la NF C 15-100 📌 Mes prestations : 🔹 Plans électriques complets : ✔Circuit d'éclairage optimisé avec DIALux ✔Circuit de prises de courant ✔Plan de chauffage électrique ✔Circuit de brassage d'air ✔Plan de mise à la terre 🔹 Schémas électriques détaillés : ✔ *Schéma unifilaire (TD et TGBT)– Numérotation ✔ *Livraison au format PDF ou DWG 📂 Ce dont j'ai besoin : 📎 Le plan architectural en PDF ou DWG 📎 **Vos exigences spécifiques 🔹 Commandez maintenant pour un service rapide et efficace !

En savoir plus