Je vais créer les plans électriques de votre projet
Vente 0
Proposé par Liva_Tiana_Rand Vente au total 0
Vous faites construire votre future maison et avez du mal à dessiner vos plans électriques avec les moindres détails ?!
Vous n'avez pas les moyens pour faire appel à une cabinet d’étude qui vous a proposé un coût excessivement cher ?!
Malgré cela, Vous cherchez toujours un prestataire bien qualifié et sérieux pour vous dessiner des plans électriques professionnel sans pouvoir y dépenser un budget trop important ?!
Vous avez bien raison, les plans de votre maison n'est pas à prendre à la légère ! Car une Maison c'est pour Toute la vie .... La conception doit être réfléchie et corresponde à votre vécu et vos attentes.
Pour cela, Privilégiez un travail de qualité en me laissant prendre soin de la réalisation de votre plan et projet à un prix imbattable et en un temps record !
Confiez-nous la conception et la réalisation de vos plans électriques pour des installations fiables, sécurisées et conformes aux normes. Nous analysons vos besoins, concevons des plans sur mesure. Que ce soit pour un projet résidentiel, commercial ou industriel, notre expertise garantit une solution adaptée et durable. Faites le choix de la tranquillité et de la qualité en nous contactant dès aujourd’hui !
Ingénieur Électrique – Votre Partenaire pour des Plans Électriques sur Mesure
Avec plusieurs années d’expérience en bureau d’études et une maîtrise des outils comme Caneco BT, AutoCAD et Dialux.
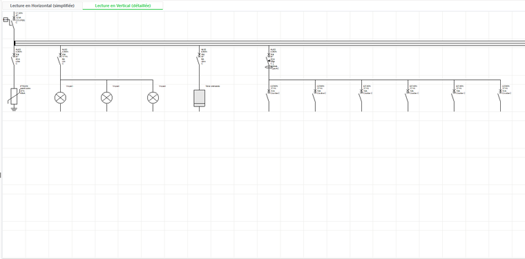
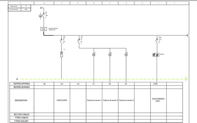
Les plans sont tous livrés avec les schémas électriques correspondant suivant les normes en vigueur
Concernant le courant fort (éclairage, prises, climatisation) je conçois des plans sur mesure, adaptés à vos besoins et conformes aux normes en vigueur.
Contactez-moi pour des installations fiables, optimisées et réalisées avec précision !
Je vous propose une étude complète et le dimensionnement de vos plans d’éclairage, incluant la réalisation des plans détaillés et leur impression en format PDF avec le fichier sources en dwg , le tout à partir de 11,70 $US seulement.
Je prends en charge la création complète de vos plans électriques, de l'étude initiale jusqu'à la livraison finale. Voici ce que vous pouvez attendre :
- Conception des plans électriques adaptés à vos besoins
- Dimensionnement des protections et des câbles
- Plans et schéma de votre tableau électrique avec la possibilité de chiffrage
Formats et options de livraison :
.PDF : pour une consultation facile et immédiate
.DWG : pour posséder la version source modifiable ( à la demande)
Tarifs personnalisés :
Je propose des tarifs transparents et évolutifs selon la taille de votre projet :
Plan d'implantation des circuits de prises, éclairage, courant faible, plaque de cuisson, etc.. Selon vos besoins :
Surface Prix
Jusqu'à 20 m² ---> 11,70 $US
Entre 20 et 30 m² ---> +23,41 $US
Entre 30 et 40 m² ---> +35,11 $US
Entre 40 et 70 m² ---> +46,81 $US
Entre 70 et 100 m² ---> +58,52 $US
Entre 100 et 150 m² ---> +70,22 $US
Entre 150 et 200 m² ---> +93,63 $US
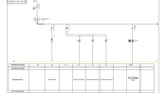
Schéma électrique du tableau :
Options Prix
Bilan de puissance : Offert jusqu’à 40m² / + 5,85 $US tous les 5m² en plus
Schéma unifilaire + ---> Offert jusqu’à 40m² / +222,37 $US
Plan d'implantation des équipements
Chiffrage du tableau électrique
marque Schneider ou Legrand ---> Offert jusqu’à 40m² / +58,52 $US
Vous n'avez pas les moyens pour faire appel à une cabinet d’étude qui vous a proposé un coût excessivement cher ?!
Malgré cela, Vous cherchez toujours un prestataire bien qualifié et sérieux pour vous dessiner des plans électriques professionnel sans pouvoir y dépenser un budget trop important ?!
Vous avez bien raison, les plans de votre maison n'est pas à prendre à la légère ! Car une Maison c'est pour Toute la vie .... La conception doit être réfléchie et corresponde à votre vécu et vos attentes.
Pour cela, Privilégiez un travail de qualité en me laissant prendre soin de la réalisation de votre plan et projet à un prix imbattable et en un temps record !
Confiez-nous la conception et la réalisation de vos plans électriques pour des installations fiables, sécurisées et conformes aux normes. Nous analysons vos besoins, concevons des plans sur mesure. Que ce soit pour un projet résidentiel, commercial ou industriel, notre expertise garantit une solution adaptée et durable. Faites le choix de la tranquillité et de la qualité en nous contactant dès aujourd’hui !
Ingénieur Électrique – Votre Partenaire pour des Plans Électriques sur Mesure
Avec plusieurs années d’expérience en bureau d’études et une maîtrise des outils comme Caneco BT, AutoCAD et Dialux.
Les plans sont tous livrés avec les schémas électriques correspondant suivant les normes en vigueur
Concernant le courant fort (éclairage, prises, climatisation) je conçois des plans sur mesure, adaptés à vos besoins et conformes aux normes en vigueur.
Contactez-moi pour des installations fiables, optimisées et réalisées avec précision !
Je vous propose une étude complète et le dimensionnement de vos plans d’éclairage, incluant la réalisation des plans détaillés et leur impression en format PDF avec le fichier sources en dwg , le tout à partir de 11,70 $US seulement.
Je prends en charge la création complète de vos plans électriques, de l'étude initiale jusqu'à la livraison finale. Voici ce que vous pouvez attendre :
- Conception des plans électriques adaptés à vos besoins
- Dimensionnement des protections et des câbles
- Plans et schéma de votre tableau électrique avec la possibilité de chiffrage
Formats et options de livraison :
.PDF : pour une consultation facile et immédiate
.DWG : pour posséder la version source modifiable ( à la demande)
Tarifs personnalisés :
Je propose des tarifs transparents et évolutifs selon la taille de votre projet :
Plan d'implantation des circuits de prises, éclairage, courant faible, plaque de cuisson, etc.. Selon vos besoins :
Surface Prix
Jusqu'à 20 m² ---> 11,70 $US
Entre 20 et 30 m² ---> +23,41 $US
Entre 30 et 40 m² ---> +35,11 $US
Entre 40 et 70 m² ---> +46,81 $US
Entre 70 et 100 m² ---> +58,52 $US
Entre 100 et 150 m² ---> +70,22 $US
Entre 150 et 200 m² ---> +93,63 $US
Schéma électrique du tableau :
Options Prix
Bilan de puissance : Offert jusqu’à 40m² / + 5,85 $US tous les 5m² en plus
Schéma unifilaire + ---> Offert jusqu’à 40m² / +222,37 $US
Plan d'implantation des équipements
Chiffrage du tableau électrique
marque Schneider ou Legrand ---> Offert jusqu’à 40m² / +58,52 $US
-
Commandez le
service de votre choix
à l’un de nos vendeurs -
Échangez par chat sur le
site jusqu’à la livraison en toute sécurité -
Le vendeur n’est payé que
lorsque vous validez la livraison
À propos du vendeur
Commande en cours 0
Vente au total 0
Vendeur depuis oct. 2024
L'innovation est une des grandes clés de l'avenir