Je vais concevoir vos plans techniques complets (sécurité incendie, vidéosurveillance et réseau)

Vente 0

Proposé par Archi_3DStudio Archi_3D Studio Ventes au total 2

Un projet immobilier ne se résume pas à de beaux plans.

Ce qui fait la qualité réelle d’un bâtiment, c’est sa sécurité, son organisation technique et son fonctionnement au quotidien.

Un mauvais positionnement des équipements peut entraîner :
– des risques pour les occupants
– des surcoûts importants en chantier
– une mauvaise exploitation du bâtiment

C’est exactement ce que j’évite.

Je vous propose une conception technique complète et réfléchie, adaptée aux réalités du terrain, que ce soit pour un immeuble, une maison, un commerce ou des bureaux.

À QUI S’ADRESSE CE SERVICE ?

Promoteurs immobiliers
Architectes et cabinets
Bureaux d’études
Investisseurs
Particuliers exigeants

CE QUE JE CONÇOIS

Je réalise des plans techniques professionnels pour :

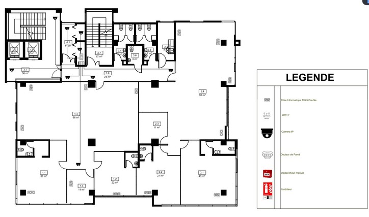
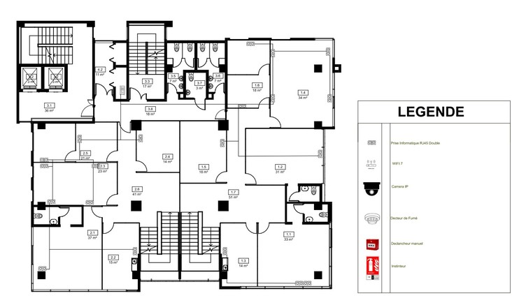
Sécurité incendie

Implantation des extincteurs

Chemins d’évacuation

Issues de secours

Signalisation

Vidéosurveillance (CCTV)

Positionnement stratégique des caméras

Champs de vision

Identification des angles morts

Couverture optimale des zones sensibles

Réseau informatique local (LAN)

Positionnement des prises RJ45

Baie de brassage

Routeur / switch

Cheminement des câbles

MES OFFRES
OFFRE ESSENTIELLE — 117,80 $US

1 plan technique au choix
Surface ≤ 100 m²
Format PDF
Plan clair et exploitable

Délai : 3 jours

OFFRE PRO — 294,49 $US

2 plans techniques combinés
(ex : incendie + vidéosurveillance)

Surface ≤ 200 m²
PDF + DWG
Légendes professionnelles
Implantation optimisée

Délai : 4 à 5 jours

OFFRE PREMIUM — 588,98 $US

Solution complète pour un bâtiment sécurisé et prêt à être exécuté

Plan sécurité incendie détaillé
Plan vidéosurveillance stratégique
Plan réseau informatique complet

Surface ≤ 300 m²
PDF + DWG professionnel
Schémas techniques simplifiés
Organisation cohérente de tous les systèmes

Optimisation pour le chantier (réduction des erreurs et coûts)
Logique d’exploitation réelle du bâtiment

Délai : 5 à 7 jours

OPTIONS PREMIUM
Note technique explicative (+58,90 $US)

Document clair pour comprendre l’installation
Idéal pour clients non techniques

Optimisation coût chantier (+82,46 $US)

Réduction du nombre d’équipements
Placement stratégique économique

Version visuelle / schéma simplifié (+94,24 $US)

Lecture facile pour client ou équipe


LIVRABLES

Plans professionnels clairs
PDF prêt à imprimer
Fichiers DWG exploitables
Légendes et symboles techniques
Documents organisés pour chantier

POURQUOI ME FAIRE CONFIANCE ?

Approche architecturale + technique
Compréhension réelle du chantier
Vision globale du bâtiment
Travail structuré et professionnel
Communication claire et réactive

Je ne fais pas juste des plans.
Je vous aide à sécuriser, optimiser et valoriser votre projet immobilier.

AVANT DE COMMANDER

Merci de me fournir :

Plan architectural (PDF ou DWG)

Surface du projet

Type de bâtiment

Besoins spécifiques

Un bon projet se voit sur les rendus.
Un projet réussi se vérifie dans sa technique.

Confiez cette partie à un professionnel.

Je vais concevoir vos plans techniques complets (sécurité incendie, vidéosurveillance et réseau)

Ce vendeur n’est pas assujetti à la TVA.

Personnaliser le service

  1. Commandez le
    service de votre choix
    à l’un de nos vendeurs
  2. Échangez par chat sur le
    site jusqu’à la livraison en toute sécurité
  3. Le vendeur n’est payé que
    lorsque vous validez la livraison

À propos du vendeur

Archi_3DStudio

Performance
Commande en cours 0 Ventes au total 2 Vendeur depuis sept. 2025
Commande en cours 0 Ventes au total 2 Vendeur depuis sept. 2025

Évitez les erreurs coûteuses et visualisez votre projet avant construction. Nous sommes concepteurs et modélisateurs 3D expérimentés, spécialisés dans les projets allant de villas individuelles aux immeubles R+15. Nous transformons vos idées en plans précis et rendus 3D réalistes, clairs et exploitables, pour que vous : ✔ sachiez exactement ce que vous construisez ✔ optimisiez vos espaces et coûts ✔ preniez vos décisions en toute confiance Nos clients : promoteurs, architectes, investisseurs et particuliers exigeants. Pourquoi nous choisir ? 🔹 Expertise internationale et rigueur technique 🔹 Communication fluide et suivi personnalisé 🔹 Rendus réalistes et exploitables pour le chantier 💡 Nous ne faisons pas que dessiner des plans : nous sécurisons et valorisons votre projet.

En savoir plus