Je vais réaliser le plan 2D propre et lisible de votre projet
Vente 0
Proposé par CB_IngeArchi •Ingénieur architecte – Plans 2D, façades et axonométries claires et professionnelles Vente au total 0
Vous avez besoin de plans clairs, propres et exploitables, mais vous manquez de temps ou de compétences techniques ?
Étudiant en ingénierie architecturale, je transforme vos idées, croquis ou fichiers existants en plans 2D, façades ou axonométries lisibles et professionnelles, adaptés à la présentation, au travail technique ou aux dossiers administratifs.
Mon objectif : vous faire gagner du temps avec des documents précis, bien structurés et livrés rapidement.
Je suis étudiant en ingénierie architecturale, formé à la réalisation de plans techniques clairs, précis et exploitables.
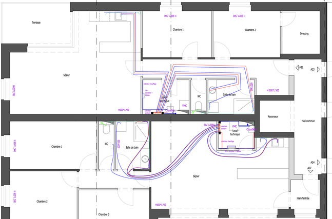
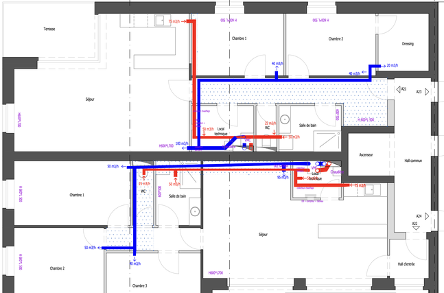
À travers ce service, je vous propose la création ou la mise au propre d’un plan 2D professionnel, à partir de vos indications, croquis, scans ou fichiers existants.
Comment se déroule la prestation ?
- Vous me transmettez vos documents (croquis, dimensions, plan existant, consignes).
- J’analyse votre demande et réalise le plan selon vos besoins.
- Je vous livre un plan propre, lisible et structuré, prêt à être utilisé ou présenté.
Je travaille avec rigueur, réactivité et souci du détail afin de vous fournir un résultat conforme à vos attentes, dans les délais annoncés.
N’hésitez pas à me contacter avant commande pour valider ensemble votre projet.
L’offre de base à 23,53 $US comprend la réalisation d’un plan 2D propre et lisible (1 niveau jusqu’à 50 m²) avec cotations simples, noms des pièces et livraison en PDF + image sous 3 jours.
Vous pouvez compléter votre commande avec des options selon vos besoins : niveau supplémentaire, surface plus importante, ajout de cotations détaillées, fichier source ou livraison express 48h.
Étudiant en ingénierie architecturale, je transforme vos idées, croquis ou fichiers existants en plans 2D, façades ou axonométries lisibles et professionnelles, adaptés à la présentation, au travail technique ou aux dossiers administratifs.
Mon objectif : vous faire gagner du temps avec des documents précis, bien structurés et livrés rapidement.
Je suis étudiant en ingénierie architecturale, formé à la réalisation de plans techniques clairs, précis et exploitables.
À travers ce service, je vous propose la création ou la mise au propre d’un plan 2D professionnel, à partir de vos indications, croquis, scans ou fichiers existants.
Comment se déroule la prestation ?
- Vous me transmettez vos documents (croquis, dimensions, plan existant, consignes).
- J’analyse votre demande et réalise le plan selon vos besoins.
- Je vous livre un plan propre, lisible et structuré, prêt à être utilisé ou présenté.
Je travaille avec rigueur, réactivité et souci du détail afin de vous fournir un résultat conforme à vos attentes, dans les délais annoncés.
N’hésitez pas à me contacter avant commande pour valider ensemble votre projet.
L’offre de base à 23,53 $US comprend la réalisation d’un plan 2D propre et lisible (1 niveau jusqu’à 50 m²) avec cotations simples, noms des pièces et livraison en PDF + image sous 3 jours.
Vous pouvez compléter votre commande avec des options selon vos besoins : niveau supplémentaire, surface plus importante, ajout de cotations détaillées, fichier source ou livraison express 48h.
-
Commandez le
service de votre choix
à l’un de nos vendeurs -
Échangez par chat sur le
site jusqu’à la livraison en toute sécurité -
Le vendeur n’est payé que
lorsque vous validez la livraison
À propos du vendeur
Commande en cours 0
Vente au total 0
Vendeur depuis janv. 2026
Je suis étudiant en ingénierie architecturale, spécialisé dans la production de plans clairs, précis et exploitables, aussi bien pour des particuliers que pour des professionnels (étudiants, architectes, entrepreneurs, promoteurs).