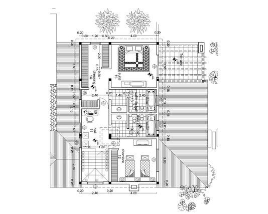
Je vais réaliser vos dessins techniques 2D sur AutoCAD (plans propres, précis et prêts pour exécution

Vente 0

Proposé par JeanMiguel1 Dessinateur AutoCAD – plans 2D clairs et exploitables Vente au total 0

Bienvenue sur mon microservice

Vous avez besoin d’un plan clair et professionnel pour concrétiser votre projet ?
Je réalise vos dessins 2D à l’aide d’un logiciel de CAO (AutoCAD) pour tout type d’espace : maison, appartement, boutique, studio ou autre.

Pour démarrer, il vous suffit de m’envoyer les dimensions, un croquis, un plan existant ou même une simple image d’inspiration. À partir de ces éléments, je produis un dessin propre, précis et directement exploitable.

Pour mon offre de base à 9 839 F CFA, vous bénéficiez de :

La réalisation d’un plan architectural jusqu’à 75 m², avec cotations essentielles et aménagement intérieur simple.

La livraison du fichier dans le format de votre choix : PDF, JPEG, PNG ou DWG.

Un délai d’exécution de 3 jours.

Jusqu’à 5 ajustements inclus si nécessaire.

Pour l’offre personnalisée à 13 119 F CFA, vous bénéficiez de :

La conception d’un plan architectural pouvant aller jusqu’à 200 m², avec cotations détaillées et organisation complète de l’espace.

Un dessin structuré de manière professionnelle pour une meilleure lisibilité et utilisation technique.

La livraison sous les formats souhaités : PDF, JPEG, PNG ou DWG.

Un délai de réalisation de 3 jours.

Jusqu’à 8 modifications possibles selon vos besoins.

Je vais réaliser vos dessins techniques 2D sur AutoCAD (plans propres, précis et prêts pour exécution

Ce vendeur n’est pas assujetti à la TVA.

Personnaliser le service

  1. Commandez le
    service de votre choix
    à l’un de nos vendeurs
  2. Échangez par chat sur le
    site jusqu’à la livraison en toute sécurité
  3. Le vendeur n’est payé que
    lorsque vous validez la livraison

À propos du vendeur

JeanMiguel1

Performance
Commande en cours 0 Vente au total 0 Vendeur depuis févr. 2026
Commande en cours 0 Vente au total 0 Vendeur depuis févr. 2026

👋 Dessinateur AutoCAD spécialisé en plans 2D précis et professionnels Je vous accompagne dans la réalisation de plans AutoCAD clairs, propres et exploitables, adaptés à vos besoins techniques et réglementaires. 🔹 Ce que je peux faire pour vous : Création de plans AutoCAD 2D Transformation de croquis, esquisses ou PDF en plans AutoCAD Plans pour le bâtiment (maisons, appartements, locaux) Dessins techniques détaillés et bien cotés Modifications et corrections de plans existants 🔹 Pourquoi travailler avec moi ? ✅ Travail précis et soigné ✅ Respect des délais ✅ Bonne compréhension des besoins clients ✅ Communication claire et réactive Que vous soyez particulier ou professionnel, je m’adapte à votre projet pour vous livrer des plans fiables et prêts à l’utilisation. 📩 N’hésitez pas à me contacter avant commande pour discuter de votre projet.

En savoir plus