Je vais réaliser les plans techniques de votre projet de construction

Nouveau

Vente 0

Proposé par Architecture_woto Designer en architecture / Plans 2D / Modélisation 3D / Architecture d’intérieur/extérieur Vente au total 0 Disponible sur ComeUp Direct

Plans techniques de construction

Vous avez un plan architectural, mais aucun plan technique pour exécuter les travaux ?
Vous voulez éviter les erreurs sur chantier ?
Vous souhaitez que votre projet soit réalisé correctement, sans improvisation ?

Si vous venez de répondre OUI à l’une de ces questions, alors ce service est fait pour vous.

1 – Pourquoi réaliser des plans techniques avant de construire ?

Un projet de construction ne se limite pas à de simples plans architecturaux.
Sans plans techniques, vous risquez :

  • des erreurs d’exécution
  • des malfaçons
  • des dépenses supplémentaires
  • des conflits avec les ouvriers

Les plans techniques permettent de :

  • guider précisément les travaux sur chantier
  • coordonner les différents corps de métier
  • éviter les pertes de temps et d’argent
  • garantir la solidité et la qualité de l’ouvrage

En clair, ce sont les documents qui transforment votre idée en réalité construite.

2 – Qui peut réaliser des plans techniques fiables ?

Les plans techniques demandent précision et maîtrise du domaine du BTP.
Il faut un professionnel capable de :

  • comprendre les plans architecturaux
  • traduire le projet en détails techniques
  • respecter les normes de construction
  • anticiper les contraintes du chantier

C’EST EXACTEMENT À CE NIVEAU QUE J’INTERVIENS.

3 – Qui suis-je pour vous accompagner ?

Je suis dessinatrice projeteuse en architecture, diplômée d’une école de référence au Bénin, avec plusieurs années d’expérience dans les projets architecturaux et BTP.

J’ai déjà accompagné plusieurs clients dans :

  • la conception de plans techniques
  • la préparation de dossiers d’exécution
  • l’organisation de projets de construction

Aujourd’hui, je mets cette expertise à votre service pour vous fournir des plans techniques clairs, précis et exploitables directement sur chantier.

4 – Combien coûtent les plans techniques ?

Contrairement aux idées reçues, des plans techniques professionnels ne sont pas forcément hors de prix.

CE QUE JE VOUS PROPOSE

Service de base – 17,61 $US

Pour 17,61 $US, je vous propose :

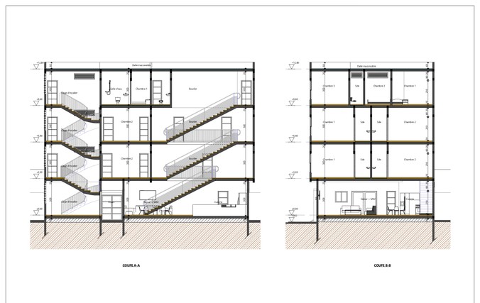
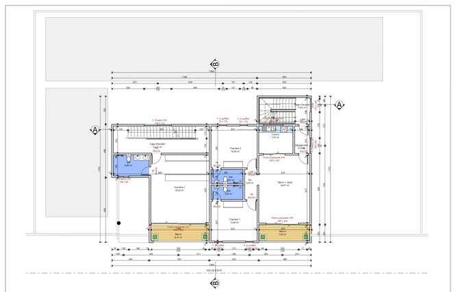
  • 1 plan technique simple (plan de masse, plan coté, plan aménagé, facades & coupes)
  • format PDF prêt à l’utilisation
  • adapté pour un projet jusqu’à 20 m²

PACKS DISPONIBLES, pour 0m2 à 150m2

Packs Services Tarif
A Plan de fondation détaillé 52,84 $US
B Plan de coffrage (poutres, poteaux, dalle) 52,84 $US
C Plan de ferraillage 52,84 $US
D Plan de toiture / charpente 52,84 $US
E Plan d’électricité 52,84 $US
F Plan plomberie & sanitaire 52,84 $US
G Plan d’implantation du bâtiment 52,84 $US
H Coupes techniques du projet 52,84 $US
I Plans de façades techniques 52,84 $US
J Plan de calepinage (carrelage, revêtements) 52,84 $US
K Diagramme de Gantt (planning des travaux) 52,84 $US
L Dossier technique complet (tous les plans) 469,71 $US

Quels types de projets sont concernés ?
Je peux réaliser les plans techniques pour :

  • maisons individuelles
  • immeubles résidentiels
  • bâtiments commerciaux
  • extensions et rénovations
  • petits et moyens projets

Que devez-vous faire maintenant ?

Vous voulez un chantier bien organisé, précis et sans erreurs ?
Je vous offre 15 minutes d’échange gratuit pour comprendre votre projet et vous orienter vers la meilleure solution.

Mon objectif : vous fournir des plans techniques clairs, précis et directement utilisables sur chantier.

Au plaisir de collaborer avec vous !
Architecture_woto

Je vais réaliser les plans techniques de votre projet de construction

Ce vendeur n’est pas assujetti à la TVA.

Personnaliser le service

  1. Commandez le
    service de votre choix
    à l’un de nos vendeurs
  2. Échangez par chat sur le
    site jusqu’à la livraison en toute sécurité
  3. Le vendeur n’est payé que
    lorsque vous validez la livraison

À propos du vendeur

Architecture_woto

Performance
Commande en cours 0 Vente au total 0 Vendeur depuis mars 2026
Commande en cours 0 Vente au total 0 Vendeur depuis mars 2026

Designer architecte depuis 4 ans, j’aide les particuliers et les entreprises à réaliser leurs projets architecturaux. Je suis Soussoulé WOTO diplômée en juin 2022 de l’ ESGC VERECHAGUINE A.K., une école de référence en BTP au Bénin. Mon parcours au sein de cette école et mes expériences professionnelles m’ont permis de développer des compétences en architecture et en génie civil. J’ai donc mis ces compétences au service de plus d’une trentaine de projets réels pour plusieurs clients de divers pays, avant de décider de m’inscrire sur la plateforme ComeUp afin de résoudre les problèmes liés a la fonctionnalité des plans, le design intérieur et extérieur, la compilation de dossier de permis et de déclaration préalable, la modélisation 3D et le devis du projet. Si vous êtes sur mon profil actuellement, c’est que vous avez l’un de ses problèmes et je me propose de vous aider. A bientôt ! Soussoulé WOTO !

En savoir plus