Je vais dimensionner les éléments porteurs de votre bâtiment avec Robot (béton armé)

Nouveau

Vente 0

Proposé par Techn_Precieux Concepteur / Modélisateur 3D Vente au total 0

Vous avez un projet de bâtiment et vous avez besoin d’un dimensionnement fiable et professionnel des éléments porteurs ?
Je vous propose un service complet de dimensionnement des structures en béton armé, réalisé avec le logiciel professionnel Autodesk Robot Structural.

√ CE QUE JE VOUS PROPOSE
Je dimensionne les éléments essentiels de votre structure :
-Poutres
-Poteaux
-Semelles de fondation
Chaque étude est réalisée avec rigueur afin de garantir la stabilité, la sécurité et l’optimisation économique de votre ouvrage.

√ MÉTHODOLOGIE
Mon travail repose sur une approche technique claire :
•Modélisation de la structure
•Application des charges (permanente et d’exploitation)
•Analyse des efforts internes
•Dimensionnement des sections en béton armé selon les normes en vigueur (BAEL 91 modifier 99, Eurocode 2,..)
•Vérifications de sécurité

√ LIVRABLES
À la fin de la prestation, vous recevrez :
Le dossier d'exécution détaillé comprenant :
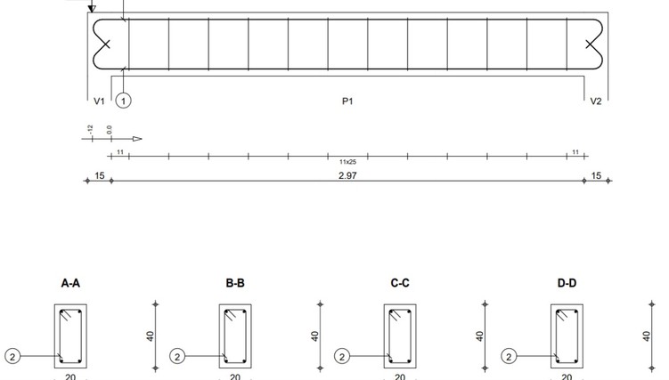
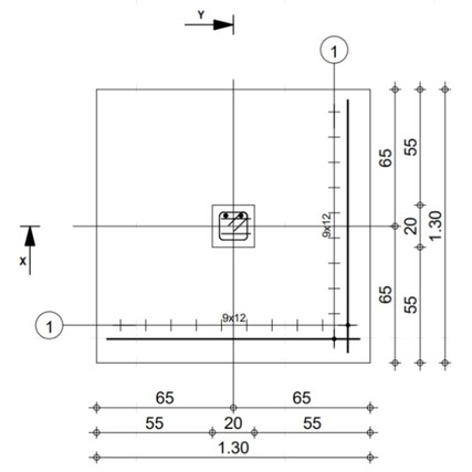
• Les plans de fondation,
• Les plans de poutraison,
• Les plans de coffrage,
• Les plans de ferraillage des éléments porteurs (semelles, poteaux, poutres,..)
•Sections dimensionnées

√ POURQUOI ME FAIRE CONFIANCE ?
- Travail sérieux et professionnel
- Résultats fiables et exploitables
- Optimisation des sections (économie de matériaux)
- Bonne communication et respect des délais

~IMPORTANT
Pour démarrer, j’aurai besoin de :
Vos plans architecturaux (PDF / DWG)
Les informations sur le projet (nombre d’étages, usage, etc.)
Toute contrainte spécifique éventuelle

~LANCEZ VOTRE PROJET
Confiez-moi le dimensionnement de votre structure et obtenez un travail précis, sécurisé et prêt à être utilisé.
~N’hésitez pas à me contacter avant de commander pour discuter de votre projet.

NB :
- Mon service de base inclus le dimensionnement complet et le dossier d'exécution détaillé prêt à l'emploi
- La surface est évaluée niveau par niveau (RDC, R+1, etc...)

Je vais dimensionner les éléments porteurs de votre bâtiment avec Robot (béton armé)

Ce vendeur n’est pas assujetti à la TVA.

Personnaliser le service

  1. Commandez le
    service de votre choix
    à l’un de nos vendeurs
  2. Échangez par chat sur le
    site jusqu’à la livraison en toute sécurité
  3. Le vendeur n’est payé que
    lorsque vous validez la livraison

À propos du vendeur

Techn_Precieux

Performance
Commande en cours 0 Vente au total 0 Vendeur depuis juil. 2025
Commande en cours 0 Vente au total 0 Vendeur depuis juil. 2025

Je m'appelle Paterne Précieux Tundé AVANON Spécialiste en conception et modélisation 3D, je vous accompagne dans la réalisation de vos projets de construction, rénovation et aménagement. Que vous soyez particulier, architecte, promoteur ou entreprise du BTP, je transforme vos idées en modèles professionnels et prêts à l’exécution. Disponible rapidement et engagé à livrer dans les délais. N’hésitez pas à me contacter pour discuter de votre projet !

En savoir plus