Je vais dessiner vos plans 2D sur Revit

5,0 (5)

Ventes 7

Proposé par Alls_BTP Plans 3D au rendu réaliste et conseil en architecture Ventes au total 33

# Vous avez un projet… mais pas le temps de produire les plans ?

Si vous êtes **sous pression**, avec des **délais à tenir** et des **responsabilités techniques**, ce service est pensé pour vous.

Ici, pas de blabla.
**Des plans propres, exploitables et livrés vite.**

---

## À qui s’adresse ce service ? (profil MARC)

Ce service est fait pour vous si :

- Vous êtes **architecte, maître d’œuvre, technicien, promoteur ou auto-constructeur**
- Vous avez un **croquis, une esquisse, un relevé ou une idée claire**
- Vous cherchez un **projeteur fiable**, qui comprend les contraintes chantier
- Vous voulez **déléguer sans devoir micro-manager**

Vous avez déjà connu :
- des plans livrés en retard,
- des fichiers inutilisables,
- des prestataires qui ne comprennent pas vos besoins techniques.

**Ici, l’objectif est simple : vous faire gagner du temps et sécuriser vos livrables.**

---

## Le vrai problème : surcharge + délais

Entre :
- les clients,
- les validations,
- les réunions,
- la coordination,

**les plans passent souvent en dernier**, alors qu’ils conditionnent tout le reste.

Un plan approximatif, c’est :
- des incompréhensions,
- des reprises,
- des pertes de temps,
- des tensions chantier.

---

## La solution : des plans clairs, livrés rapidement

Je réalise pour vous des **plans 2D et modélisations 3D propres et normés**, sous **Revit**, à partir de :
- croquis,
- esquisses,
- relevés,
- idées structurées.

**Objectif : des plans directement exploitables, sans aller-retour inutile.**

---

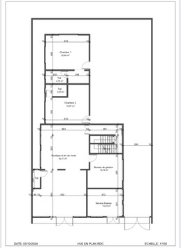
## Offre de base — *Plan Express 2D*

Inclus
---------
1 plan 2D propre (≤ 100 m²)
Réalisation sous **Revit**
Livraison **PDF imprimable**
**1 aller-retour de modification inclus**
Délai rapide (72h max)

**Idéal pour** : maisons individuelles, extensions, rénovations, études préliminaires.

---

## Modules complémentaires — Adaptés à la complexité réelle

Type de plan Surface / Complexité Délai supp. Prix
------------------------------------------------------
Plan simple avec étage(s) ≤ 75 m² / R+1 ou R+2 +1 jour **+17,67 $US**
Plan architectural RDC 75 – 180 m² +1 jour **+17,67 $US**
Plan architectural complet 75 – 180 m² / R+1 ou R+2 +3 jours **+23,56 $US**
Plan RDC 180 – 350 m² +4 jours **+47,12 $US**
Grand plan RDC 350 – 600 m² +5 jours **+58,90 $US**
Plan R+1 ou R+2 180 – 350 m² +7 jours **+82,46 $US**
Plan R+1 ou R+2 350 – 600 m² +8 jours **+106,02 $US**

**Chaque module correspond à une charge réelle de travail. Pas de surprise.**

---

## Process de commande (simple et carré)

1. Vous m’envoyez votre croquis ou vos indications
2. Je produis le plan selon vos consignes
3. Livraison d’une première version sous 72h
4. 1 ajustement inclus si nécessaire
5. Livraison finale prête à l’usage

---

## Retours clients

> **Juste_K – **
> Travail propre, livré dans les délais. Je reviendrai.

> **Yvon88 – **
> Rendu de qualité, efficace.

> **TheBlooms – **
> Très réactif et professionnel. Je recommande.

*Exemples disponibles sur mon portfolio ComeUp.*

---

## FAQ — Réponses directes

**→ Puis-je envoyer un simple croquis ?**
Oui. Tant que les dimensions sont lisibles.

**→ Est-ce suffisant pour un permis de construire ?**
Non. Ce service fournit une **base graphique exploitable**.
Un service PC complet est proposé séparément.

**→ Modifications possibles ?**
1 retouche incluse. Extensions possibles.

**→ Projet > 100 m² ?**
Contactez-moi pour une proposition adaptée.

**→ Fichiers sources ?**
Disponibles : **Revit (.rvt)** ou **DWG** en option.

---

## Récapitulatif

Plans 2D / 3D sous Revit
À partir de croquis ou esquisse
≤ 100 m² (extensions possibles)
Livraison rapide
1 modification incluse
Modules à la carte selon complexité

---

## Passez commande et avancez sans blocage

Déléguez vos plans.
Gagnez du temps.
Sécurisez vos livrables.

**Cliquez sur “Commander” et on démarre.**

Je vais dessiner vos plans 2D sur Revit

Ce vendeur n’est pas assujetti à la TVA.

Personnaliser le service

  1. Commandez le
    service de votre choix
    à l’un de nos vendeurs
  2. Échangez par chat sur le
    site jusqu’à la livraison en toute sécurité
  3. Le vendeur n’est payé que
    lorsque vous validez la livraison

Avis des clients

5,0 (5)

Compte désactivé

Très professionnel et à l'écoute.

Alls_BTP

Merci ce fût un réel plaisir de travailler avec Freddy pour son projet de rénovation. Merci et à très bientôt pour une nouvelle collaboration.

yvon88

Super travail de Lionel. Je le recommande vivement

Alls_BTP

Merci et à la prochaine pour de nouveaux projets

Juste_K

Excellent merci beaucoup

Alls_BTP

Merci pour la confiance que vous m'avez octroyer. A bientôt pour de nouvelles collaborations.

À propos du vendeur

Alls_BTP

Performance
Commande en cours 0 Ventes au total 33 Vendeur depuis sept. 2023
Commande en cours 0 Ventes au total 33 Vendeur depuis sept. 2023

Concepteur 3D/2D freelance, je conçois et optimise vos projets architecturaux de A à Z 🚀 +34 clients satisfaits, et ce n’est que le début ! 📅 Disponible 7j/7 pour vous accompagner. ⭐ Vendeur certifié et vérifié sur ComeUp. Je suis Lionel, Technicien Supérieur en Génie Civil et Concepteur 3D/2D freelance, spécialisé dans la conception, l’optimisation et la modélisation de projets architecturaux et structurels. Chez ALLS-BTP, nous aidons particuliers, entreprises et promoteurs immobiliers à transformer leurs idées en projets réalistes et rentables grâce à des plans détaillés et optimisés. Nous prenons en charge chaque étape de votre projet : ➡️ Conception architecturale (plans 2D & modélisation 3D) ➡️ Études structurelles et plans de béton armé ➡️ Plans d’exécution détaillés pour chantiers ➡️ Optimisation énergétique et durabilité des bâtiments ➡️ Rendu réaliste et visualisation 3D ➡️ Accompagnement technique et conseils professionnels 🎯 Objectif : Un projet clé en main, bien pensé et rentable ! Cliquez sur "Contacter" et envoyez moi un message – réponse garantie en moins d’une heure !

En savoir plus