Je vais réaliser votre dossier de DECLARATION PREALABLE

5,0 (22)

Ventes 29

Top service

Proposé par DinaTolotriniain Ventes au total 156 Disponible sur ComeUp Direct

Top service

Fait partie des meilleurs de sa catégorie !

Vous avez des petits travaux à réaliser sur votre habitation de moins de 150m² de surface totale de plancher (après travaux) et vous devez déposer une DECLARATION PREALABLE ?

Vous pouvez me confier la réalisation du dossier complet pour seulement 94,27 $US dans un délai de 7 jours.

Dessinateur ayant 26 ans d'expérience dont 13 ans dans la réalisation de dossiers administratifs, j'ai réalisé plus de 700 dossiers pour le compte de 3 entreprises françaises et des centaines de particuliers en France.

Je vous propose de monter votre DECLARATION PREALABLE, y compris :

1 - La vérification de la conformité du projet aux règlementations (PLU, RNU, etc).
2 - Le remplissage du formulaire CERFA et les calculs des surfaces à déclarer.
3 - La réalisation de tous les plans de l'existant et du projet avant et après travaux
4 - La réalisation d'un photomontage pour l'insertion gaphique du projet
5 - Eventuellement la mise en page des photos de l'environnement proche et lointain du projet.

Je vais vous livrer les documents ci-après, en version PDF, à l' échelle convenable dans un format A4 (ou dans certains cas en format A3) prêts à l'impression :

DOCUMENTS A LIVRER :

1 - CERFA rempli
2 - DP1 : Plan de situation
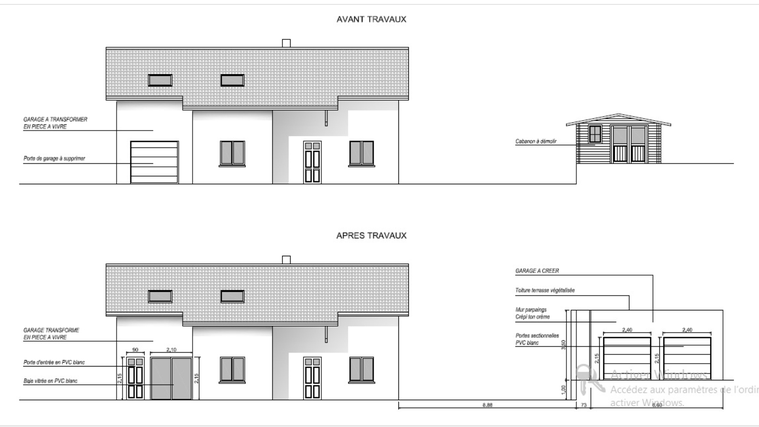
3 - DP2 : Plans de masse AVANT et APRES travaux
4 - DP3 : Plans de coupe du terrain (dans les deux sens) AVANT et APRES travaux
5 - DP4 : Plans des façades et des toirures AVANT et APRES travaux
6 - DP6 : Insertion du projet dans son environnement futur et éventuellement le DP5 : Aspect extérieur du projet
7 - DP7 : Photo du terrain vu de près
8 - DP8 : Photo du terrain vu de loin (éventuellement)

Pour réaliser votre dossier, j'aurai besoin de certains éléments que vous devriez m'envoyer :

ELEMENTS ET INFOS A FOURNIR :

1 - Les références cadastrales de la propriété concernée (ou son adresse si possible)
2 - Les photos des façades des constructions existantes sur votre propriété
3 - Anciens plans des constructions existantes (si possible)
4 - Croquis avec les dimensions des constructions existantes et du projet
5 - Photos du terrain dans son environnement proche et lointain (si possible)
6 - Descriptif du projet précisant la nature des matériaux et les couleurs extérieures
7 - Lien de téléchargement du PLU (si votre Commune en a un).

Si vous avez besoin de plus d'infos, je suis disponible sur comeup et vous répondrai sur le tchat dans le meilleur délai.

Sinon, n'hésitez pas à passer commande dès maintenant.

Je vais réaliser votre dossier de DECLARATION PREALABLE

Ce vendeur n’est pas assujetti à la TVA.

  1. Commandez le
    service de votre choix
    à l’un de nos vendeurs
  2. Échangez par chat sur le
    site jusqu’à la livraison en toute sécurité
  3. Le vendeur n’est payé que
    lorsque vous validez la livraison

Avis des clients

5,0 (22)

Redouane2013

Redouane2013

DinaTolotriniain

Je vous remercie.

Invité

À propos du vendeur

DinaTolotriniain

Performance Top
Commandes en cours 2 Ventes au total 156 Vendeur depuis déc. 2023
Commandes en cours 2 Ventes au total 156 Vendeur depuis déc. 2023

Le dessin, c'est à la fois ma passion et mon travail.

En savoir plus