Je vais réaliser votre plan d'électricité de votre logement selon la Norme NF C15-100

5,0 (3)

Ventes 3

Proposé par MM_ING_MEP_DESIGN Ingénieur CVC, Plomberie, Thermique et Électricité Ventes au total 21

Vous construisez ou rénovez un logement et vous avez besoin d’un plan d’électricité clair, professionnel et conforme à la norme NF C15-100 ?

Ce service est fait pour vous

Ce que comprend le service de base (17,67 $US) :
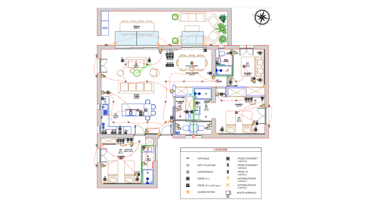
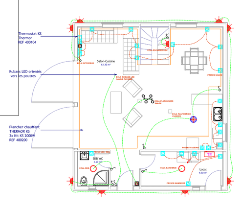
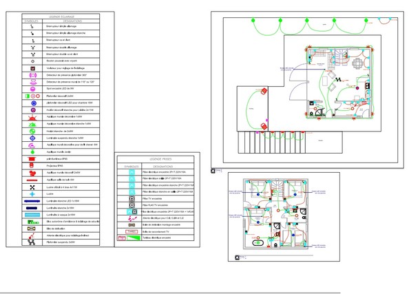
Un plan d’électricité complet pour un logement jusqu’à 10 m² (neuf ou en rénovation)

Respect strict de la norme NF C15-100

2 retouches incluses

Livraison aux formats PDF et DWG, directement exploitables par vos artisans ou installateurs

Délai de livraison : 3 jours

Options disponibles (à sélectionner selon la surface) :
Extension de surface :
Jusqu’à 20 m² → +47,12 $US / +1 jour

Jusqu’à 40 m² → +64,79 $US / +3 jours

Jusqu’à 50 m² → +76,57 $US / +4 jours

Jusqu’à 60 m² → +88,35 $US / +6 jours

Jusqu’à 70 m² → +100,13 $US / +7 jours

Jusqu’à 80 m² → +117,80 $US / +8 jours

Jusqu’à 100 m² → +141,35 $US / +9 jours

Options techniques complémentaires :
Schéma unifilaire → +58,90 $US / +4 jours

Bilan de puissance → +58,90 $US / +3 jours

Métré et quantitatif → +58,90 $US / +3 jours

Pourquoi me faire confiance ?
Plus de 10 ans d’expérience dans l’ingénierie du bâtiment

Maîtrise des logiciels professionnels : AutoCAD, Caneco BT

Travail rigoureux, conforme aux normes françaises

Communication claire, rapide et professionnelle

> N’hésitez pas à prendre contact avec nous pour tous vos projets, nous y répondrons dans les plus brefs délais.

Je vais réaliser votre plan d'électricité de votre logement selon la Norme NF C15-100

Ce vendeur n’est pas assujetti à la TVA.

Personnaliser le service

  1. Commandez le
    service de votre choix
    à l’un de nos vendeurs
  2. Échangez par chat sur le
    site jusqu’à la livraison en toute sécurité
  3. Le vendeur n’est payé que
    lorsque vous validez la livraison

Avis des clients

5,0 (3)

KamelZOUAOUI2

Très beau travail, professionnel et techniquement rien à dire. Excellente communication et projet livrée dans les temps. A recommander fortement, merci encore !

MM_ING_MEP_DESIGN

J’ai l’honneur de travailler avec un client très professionnel comme M. ZOUAOUI, et j’espère que nous collaborerons encore ensemble. Merci encore !

FrancoisBellicardi

Fantastic job Again!! I am amazed by the quality and regularly of his knowledge and work. Thank you

MM_ING_MEP_DESIGN

Magnifique et super client. J’ai toujours le plaisir de travailler avec Monsieur Bellicardi, un excellent client, et j’espère que nous collaborerons toujours ensemble.

FrancoisBellicardi

Excellent travail sur la réalisation du plan électrique. La prestation est très précise, avec de nombreuses remarques et critiques pertinentes, et un vrai suivi derrière. Personne sympathique, impliquée, qui cherche réellement à aider et qui maîtrise parfaitement son métier. Je recommande vivement à tout professionnel souhaitant un travail sérieux et bien accompagné.

MM_ING_MEP_DESIGN

Merci Monsieur Bellicardi, Vous êtes un professionnel sérieux et très agréable. Le travail avec vous est de grande qualité, flexible, avec un excellent niveau professionnel et une communication fluide. J’espère sincèrement que nous aurons l’occasion de continuer à travailler ensemble. Je vous remercie beaucoup.

À propos du vendeur

MM_ING_MEP_DESIGN

Performance Top
Commande en cours 0 Ventes au total 21 Vendeur depuis mars 2023
Commande en cours 0 Ventes au total 21 Vendeur depuis mars 2023

Je suis un ingénieur CVC, Plomberie et Électricité freelance avec une solide expérience en études et conception BIM MEP. Je réalise des études conformes aux normes françaises et belges, notamment : Normes françaises : DTU 68.3 (CVC), DTU 60.1 (Plomberie), DTU 60.11 (Plomberie), NF C 15-100 (Électricité), RE 2020, RT 2012. Normes belges : NBN D 50-001 (CVC), NBN 1.2 (Plomberie), RGIE (Règlement Général sur les Installations Électriques) pour les systèmes électriques. Si vous êtes dans un autre pays à part la France ou la Belgique, vous pouvez me contacter, car je travaille avec des clients du monde entier, surtout pour des villas et des résidences. Merci de visiter mon portfolio sur ComeUp pour consulter les projets réalisés et d'autres détails ✅ CVC et Plomberie : Conformité aux DTU 68.3, DTU 60.1, DTU 60.11, ainsi qu'aux réglementations thermiques et environnementales en vigueur (RE 2020, RT 2012). ✅Électricité : Études réalisées selon la norme NF C 15-100 pour les installations électriques basse tension, pour votre maison ou logement. 🔹 Études et Conception 2D Réalisation de plans techniques 2D avec AutoCAD et Autofluid. Schémas synoptiques et isométriques détaillés. Isométrique tuyauterie 🔹 Notes de Calcul CVC & Plomberie Calculs de dimensionnement des réseaux aérauliques et hydrauliques (ventilation, chauffage, climatisation, plomberie). 🔹 Modélisation BIM MEP Création de maquettes numériques en 3D sous Revit à partir de vos plans existants (architecturaux, fluides, électriques en DWG, PDF) ou de vos minutes. Coordination des réseaux (CVC, plomberie, électricité) dans un environnement BIM. 🔹 Chiffrage et Études Techniques Réalisation des métrés et estimations de coûts. 🔹 Réalisation d'études thermiques réglementaires selon les normes RE 2020, RT 2012 et RT Existant, pour les projets de construction neuve et de rénovation. Que ce soit pour une villa, un immeuble ou un projet tertiaire, je vous accompagne sur l’ensemble de vos études MEP. Consultez mon portfolio et mes services pour plus de détails ! Conception 2D sur AutoCAD de votre projet CVC-PLB, électrique ou architectural. Réalisation de maquettes numériques BIM MEP en 3D avec Revit MEP, incluant la coordination de modèles avec Navisworks pour détecter les conflits et assurer une parfaite intégration des systèmes. Étude fluide réalisée conformément aux réglementations en vigueur, en suivant les DTU et normes françaises, incluant des notes de calcul certifiées par ThermExcel, ainsi qu'une conception précise avec AutoCAD et Autofluid. Plan électrique de votre maison ou logement, conforme à la norme NF C 15-100, avec un schéma unifilaire en option. Réalisation d’isométriques pour des projets complexes comme les installations pharmaceutiques, les salles blanches et les blocs opératoires, garantissant une précision maximale dans les plans et les détails techniques. Réalisation d'études thermiques réglementaires selon les normes RE 2020, RT 2012 et RT Existant, pour les projets de construction neuve et de rénovation. Plans et Rendus architecturaux de haute qualité pour vos projets de construction, avec une modélisation précise des plans d'architecture, apportant un réalisme visuel essentiel pour la présentation et la validation des projets. Coordination des modèles BIM avec les équipes de conception, d'ingénierie et de construction pour assurer la qualité, la précision et la conformité réglementaire. Je possède une expérience pratique de la gestion de projets de construction, avec la capacité de travailler sous pression pour respecter les délais de livraison. En tant que freelance, je travaille de manière flexible et m'adapte aux besoins et aux échéances de mes clients. Je suis fier de fournir des services de haute qualité et déterminé à atteindre des résultats exceptionnels pour chaque projet. Si vous recherchez un ingénieur bâtiment freelance qualifié et expérimenté pour vos projets de construction, n'hésitez pas à me contacter pour discuter de vos besoins et de vos attentes. Je suis convaincu que nous pouvons collaborer efficacement pour obtenir des résultats remarquables pour votre projet. je suis aussi un Développeur Full Stack spécialisé en React.js et Node.js. Je crée des sites web et applications modernes, rapides et responsives pour entreprises, startups et entrepreneurs. Technologies : React.js, Node.js, JavaScript, HTML, CSS, WordPress, MongoDB, SQL ✅Ingénieur CVC freelance france ✅Ingénieur Plomberie freelance france ✅Ingénieur Électricité freelance france ✅ingénieur thermicien freelance france ✅Ingénieur CVC freelance ✅Ingénieur Plomberie freelance ✅Ingénieur Électricité freelance ✅Développeur Full Stack ✅dessinateur projeteur cvc plomberie ✅dessinateur cvc plomberie ✅projeteur cvc suiss ✅développeur site web freelance France ✅modeleur cvc plomberie ✅dessinateur projeteur

En savoir plus