Je vais dessiner votre plan 2D sur revit

5,0 (1)

Vente 1

Proposé par MM_ING_MEP_DESIGN Ingénieur CVC, Plomberie, Thermique et Électricité Ventes au total 21

Nous sommes spécialisés dans la réalisation de plans de maisons sur mesure pour la concrétisation de votre projet. Nous offrons la possibilité de faire des modifications sur le plan de votre maison en collaboration avec un ingénieur de bâtiment professionnel à un tarif abordable. Si vous avez une idée de la forme que prendra votre future maison, nous pouvons vous aider à la visualiser en la redessinant en 2D et 3D à partir de votre esquisse en format image, PDF ou DWG. Pour vous offrir une vue plus précise avant l'exécution, nous vous proposons en cadeau deux rendus en image 3D. Notre objectif est de vous accompagner dans la réalisation de votre rêve de maison personnalisée.

Je suis un ingénieur en bâtiment et je suis en mesure de vous aider à concrétiser vos projets de construction en élaborant des dessins en 2D et 3D pour divers types de bâtiments. Que vous cherchiez à concevoir un studio, un logement, une maison individuelle, une villa ou une maison en étage, un immeuble pour votre société ou entreprise, un restaurant ou un café, un magasin ou tout autre type de bâtiment, je suis là pour vous aider. Avec mes compétences et mon expérience, je suis en mesure de réaliser des plans précis et détaillés qui tiennent compte de toutes les exigences structurelles et fonctionnelles de votre projet, tout en respectant les normes et les règles en vigueur.

Je vous propose pour seulement 17,67 $US, à partir de votre croquis de projet qui ne dépasse pas 30m² :

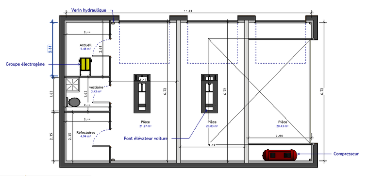
- Un plan 2D DWG et un PDF contenant 4 coupes de façade de 4 faces et une vue 3D
- Le fichier source de projet en Revit 2019
- Un fichier IFC que vous pourrez ouvrir avec une visionneuse IFC si vous n'avez pas Revit
- 2 rendus d'images en cadeau.

je vous propose aussi d'autres services tels que :
- Conception des plans d'exécution, de plans de détails, de plans de climatisation, de ventilation et de plomberie sur Autocad et Autofluid."

-Conception et Dimensionnement des systèmes HVAC et PLB sur Autofluid . Notes de calcul CVC et plomberie avec Thermexcel

- rendu architectural et animation

-convertir 3 fichiers step ou iges ou stl en familles revit fichiers RFA version revit 2019

-convertir 3 familles Revit rfa en 3 fichers sketchup skp ou step ou iges ou stl

-convertir 3 familles revit rfa exemple rfa 2023 vers une version plus ancienne exemple rfa 2020

Je vais dessiner votre plan 2D sur revit

Ce vendeur n’est pas assujetti à la TVA.

Personnaliser le service

  1. Commandez le
    service de votre choix
    à l’un de nos vendeurs
  2. Échangez par chat sur le
    site jusqu’à la livraison en toute sécurité
  3. Le vendeur n’est payé que
    lorsque vous validez la livraison

Avis des clients

5,0 (1)

PierreGBoissier

Super travail vraiment satisfait conseil à 10000%

MM_ING_MEP_DESIGN

J'ai l'honneur de travailler avec un super client professionnel comme M. Pierre G. Boissier. J'espère que nous travaillerons toujours ensemble sur d'autres projets.

À propos du vendeur

MM_ING_MEP_DESIGN

Performance Top
Commande en cours 0 Ventes au total 21 Vendeur depuis mars 2023
Commande en cours 0 Ventes au total 21 Vendeur depuis mars 2023

Je suis un ingénieur CVC, Plomberie et Électricité freelance avec une solide expérience en études et conception BIM MEP. Je réalise des études conformes aux normes françaises et belges, notamment : Normes françaises : DTU 68.3 (CVC), DTU 60.1 (Plomberie), DTU 60.11 (Plomberie), NF C 15-100 (Électricité), RE 2020, RT 2012. Normes belges : NBN D 50-001 (CVC), NBN 1.2 (Plomberie), RGIE (Règlement Général sur les Installations Électriques) pour les systèmes électriques. Si vous êtes dans un autre pays à part la France ou la Belgique, vous pouvez me contacter, car je travaille avec des clients du monde entier, surtout pour des villas et des résidences. Merci de visiter mon portfolio sur ComeUp pour consulter les projets réalisés et d'autres détails ✅ CVC et Plomberie : Conformité aux DTU 68.3, DTU 60.1, DTU 60.11, ainsi qu'aux réglementations thermiques et environnementales en vigueur (RE 2020, RT 2012). ✅Électricité : Études réalisées selon la norme NF C 15-100 pour les installations électriques basse tension, pour votre maison ou logement. 🔹 Études et Conception 2D Réalisation de plans techniques 2D avec AutoCAD et Autofluid. Schémas synoptiques et isométriques détaillés. Isométrique tuyauterie 🔹 Notes de Calcul CVC & Plomberie Calculs de dimensionnement des réseaux aérauliques et hydrauliques (ventilation, chauffage, climatisation, plomberie). 🔹 Modélisation BIM MEP Création de maquettes numériques en 3D sous Revit à partir de vos plans existants (architecturaux, fluides, électriques en DWG, PDF) ou de vos minutes. Coordination des réseaux (CVC, plomberie, électricité) dans un environnement BIM. 🔹 Chiffrage et Études Techniques Réalisation des métrés et estimations de coûts. 🔹 Réalisation d'études thermiques réglementaires selon les normes RE 2020, RT 2012 et RT Existant, pour les projets de construction neuve et de rénovation. Que ce soit pour une villa, un immeuble ou un projet tertiaire, je vous accompagne sur l’ensemble de vos études MEP. Consultez mon portfolio et mes services pour plus de détails ! Conception 2D sur AutoCAD de votre projet CVC-PLB, électrique ou architectural. Réalisation de maquettes numériques BIM MEP en 3D avec Revit MEP, incluant la coordination de modèles avec Navisworks pour détecter les conflits et assurer une parfaite intégration des systèmes. Étude fluide réalisée conformément aux réglementations en vigueur, en suivant les DTU et normes françaises, incluant des notes de calcul certifiées par ThermExcel, ainsi qu'une conception précise avec AutoCAD et Autofluid. Plan électrique de votre maison ou logement, conforme à la norme NF C 15-100, avec un schéma unifilaire en option. Réalisation d’isométriques pour des projets complexes comme les installations pharmaceutiques, les salles blanches et les blocs opératoires, garantissant une précision maximale dans les plans et les détails techniques. Réalisation d'études thermiques réglementaires selon les normes RE 2020, RT 2012 et RT Existant, pour les projets de construction neuve et de rénovation. Plans et Rendus architecturaux de haute qualité pour vos projets de construction, avec une modélisation précise des plans d'architecture, apportant un réalisme visuel essentiel pour la présentation et la validation des projets. Coordination des modèles BIM avec les équipes de conception, d'ingénierie et de construction pour assurer la qualité, la précision et la conformité réglementaire. Je possède une expérience pratique de la gestion de projets de construction, avec la capacité de travailler sous pression pour respecter les délais de livraison. En tant que freelance, je travaille de manière flexible et m'adapte aux besoins et aux échéances de mes clients. Je suis fier de fournir des services de haute qualité et déterminé à atteindre des résultats exceptionnels pour chaque projet. Si vous recherchez un ingénieur bâtiment freelance qualifié et expérimenté pour vos projets de construction, n'hésitez pas à me contacter pour discuter de vos besoins et de vos attentes. Je suis convaincu que nous pouvons collaborer efficacement pour obtenir des résultats remarquables pour votre projet. je suis aussi un Développeur Full Stack spécialisé en React.js et Node.js. Je crée des sites web et applications modernes, rapides et responsives pour entreprises, startups et entrepreneurs. Technologies : React.js, Node.js, JavaScript, HTML, CSS, WordPress, MongoDB, SQL ✅Ingénieur CVC freelance france ✅Ingénieur Plomberie freelance france ✅Ingénieur Électricité freelance france ✅ingénieur thermicien freelance france ✅Ingénieur CVC freelance ✅Ingénieur Plomberie freelance ✅Ingénieur Électricité freelance ✅Développeur Full Stack ✅dessinateur projeteur cvc plomberie ✅dessinateur cvc plomberie ✅projeteur cvc suiss ✅développeur site web freelance France ✅modeleur cvc plomberie ✅dessinateur projeteur

En savoir plus